Description
This four-post marvel moves with the grace of a ballet dancer on a street dance competition. Its portable design and caster kit let you choreograph your garage space like a pit crew chief. Add in the jack tray for precision lifts and three drip trays to keep things cleaner than a Concours d'Elegance show car, and you've got more versatility than a Swiss Army knife. With 10 locking positions engaging faster than a drag racer's reflexes and a lift height that rivals a monster truck's suspension, the Classic Lift isn't just raising cars - it's elevating your entire garage experience to pole position.
Triumph Classic Lift Specifications:
- Lifting Capacity: 8,000 lbs
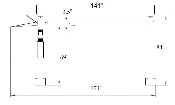
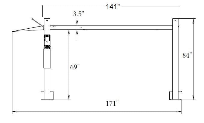
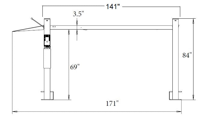
- Overall Height: 84"
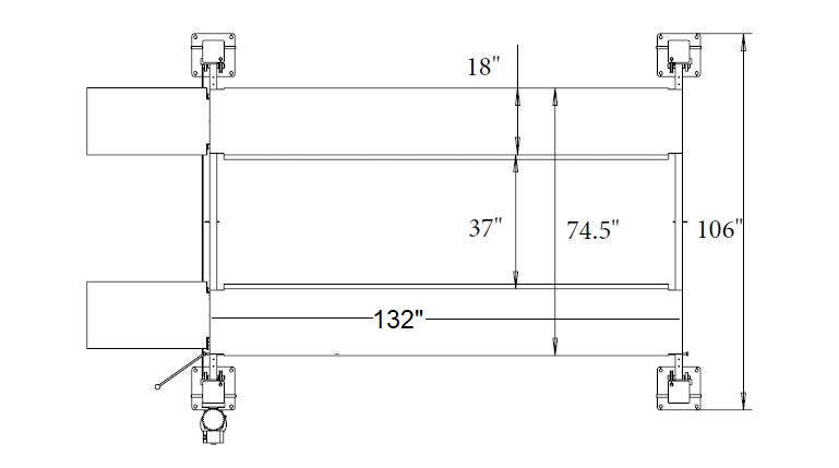
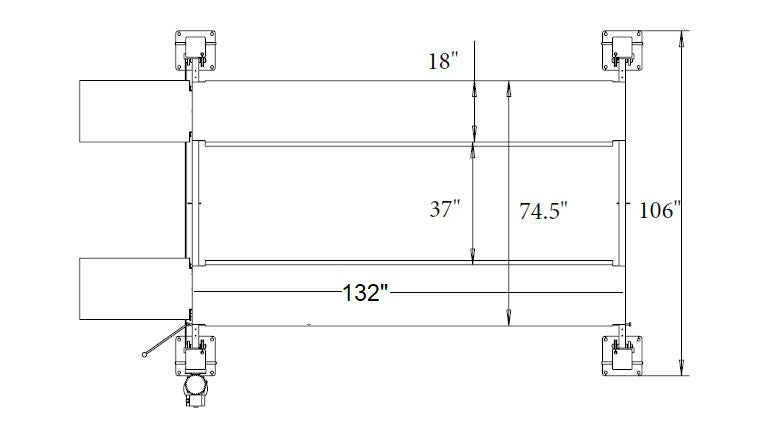
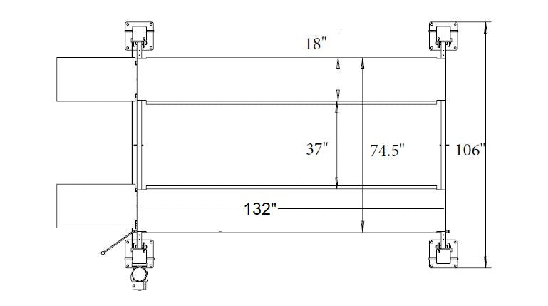
- Runway Length: 132" (w/o ramps)
- Overall Length: 141" (2.5ft shorter than NSS8)
- Overall Width: 106"
- Lift Height: 72"
- Height Under Runway: 69"
- Drive Thru Width: 93"
- Runway Width: 18"
- Between Runway: 37"
- Locking Positions: 10 (Every 4.5")
- Lowest Lock Position: 26"
- Highest Lock Position: 69.5"
- Single Point Lock Release
- Lift Time: 40 Seconds
- Motor: 110V / 20 Amp / 1HP
- Shipping Weight: 1,600 lbs
- Pallet Dimension: 136" x 21" x 29"
NSS-8 CLASSIC 8,000 Vehicle Storage Lift Special Features:
- Often called "The Classic"
- Four-post design for enhanced stability and vehicle storage
- Drive-on ramps for easy vehicle positioning
- Aluminum Ramps
- Automatic safety locks for secure lifting
- Includes:
- Caster kit for mobility and easy placement
- Drip trays to prevent fluid mess
- Jack tray for additional lifting flexibility
- Warranty: 1 year parts only
- Certification: CE Certified and built in factories with ISO9001 Quality Certification
- Optional Item (Sold Separate)
- Triumph NSS-8 Storage Lift Bridge Jack SJ35
NSS-8SQ Manual
Warehouse Pickup locations (No shipping charge):
- Columbus, OH
- Fort Worth, TX
- North Las Vegas, NV
Payment & Security
Your payment information is processed securely. We do not store credit card details nor have access to your credit card information.


































